|
Thermistor-Motorschutz m. 1Fühler (Meldung und Begrenzung) ohne Busanschaltung
|
|
Kurzbeschreibung
|
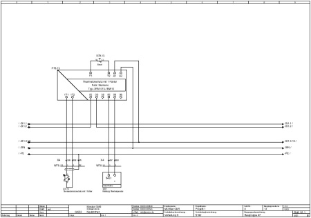
Ansicht Stromlaufplan
|
- Das Auslösegerät arbeitet nach dem Ruhestromprinzip und überwacht sich selbst auf Drahtbruch.
- Hat der Fühlerkreis (PTC-Widerstand) die eingestellte Ansprechschwelle "Auslösung" erreicht, so geht die Meldung , über Feldverkabelung, an die Steuerung.
- Der zweite Relaiskontakt unterbricht die Sicherheitskette, die zur Abschaltung des Hauptstromkreises führt.
|
|
|
Anwendung
|
- Thermistor-Motorschutz (in Verbindung mit einem PTC-Widerstand) wird zur Temperaturüberwachung von elektrischen Antrieben verwendet.
|
|
|
|
Copyright © 1999 by MOStec GbR Jakobi Josef und Norbert
|
|