|
Erdschlußüberwachung (Meldung und Begrenzung) ohne Busanschaltung
|
|
Kurzbeschreibung
|
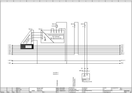
Ansicht Stromlaufplan
|
- Alle Stromführende Leiter (des zu schützenden Netzes außer der Nullleiter) werden durch einen Summenstromwandler geführt.
- Im fehlerfreien Zustand ist die Summe aller Ströme gleich null.
- Fließt im Fehlerfall ein Strom gegen Erde (Summe aller Ströme ungleich null) so wird im Wandler eine Spannung erzeugt, die zum Auslösen der Erdschlüßüberwachung führt.
- Über ein Relais werden dann zwei Relaiskontakte geöffnet.
- Der erste Relaiskontakt meldet die Störung, über die Feldverkabelung, an die Steuerung.
- Der zweite Relaiskontakt unterbricht die Sicherheitskette, die zur Abschaltung des Hauptstromkreises führt.
|
|
|
Anwendung
|
- Erdschlußüberwachung überwacht den Hauptstromkreis auf Erdschluß.
|
|
|
|
Copyright © 1999 by MOStec GbR Jakobi Josef und Norbert
|
|